概述
卑南族的祖靈屋稱為Karumahan,乃「真正的家」之意,翻譯成「本家」、「祖靈屋」或「祭祀小屋」。人們相信死後靈魂會前往祖靈屋。就歷史發展而言,祖靈屋可能是最早的家屋,是舉辦祭典的主要場所之一。卑南族的祖靈屋屬性多樣,包含部落性、家族性、巫師性、個人性祖靈屋等。
1. 部落性祖靈屋:與部落起源、建立有關,強調部落的主體性與延續性,也是祭司儀式力量的來源。
2. 家族性祖靈屋:通常設於本家旁,以家族創始祖先為源頭。
3. 巫師性祖靈屋:乃巫師承襲某位先祖的巫師工作而立,成巫儀式會顯示巫師力量的來源。巫師性祖靈屋稱為Lalawinan,是巫師放置儀式器物與睡臥之處。
4. 個人性祖靈屋:乃族人因生病等因素,經占卜需祭祀某位祖先而立,遇有相同遭遇之親屬可共同祭祀之,這類個人性祖靈屋在石生系統的知本較常見。
建築形式
卑南族的祖靈屋無論性質屬性,建築形式都類似家屋建築,傳統時期主要為柱梁結構竹木構造雙坡茅葺頂形式,入口位於屋簷側正中央,室內為單室型。雖建築形式相似,但建築規模有所差異,通常部落性祖靈屋規模最大,其次為家族性祖靈屋,再來為巫師性祖靈屋,規模最小者為個人性祖靈屋。然知本近年建造之部落性三大氏族祖靈屋為石板構造形式,與家屋常見的竹木構造不同。
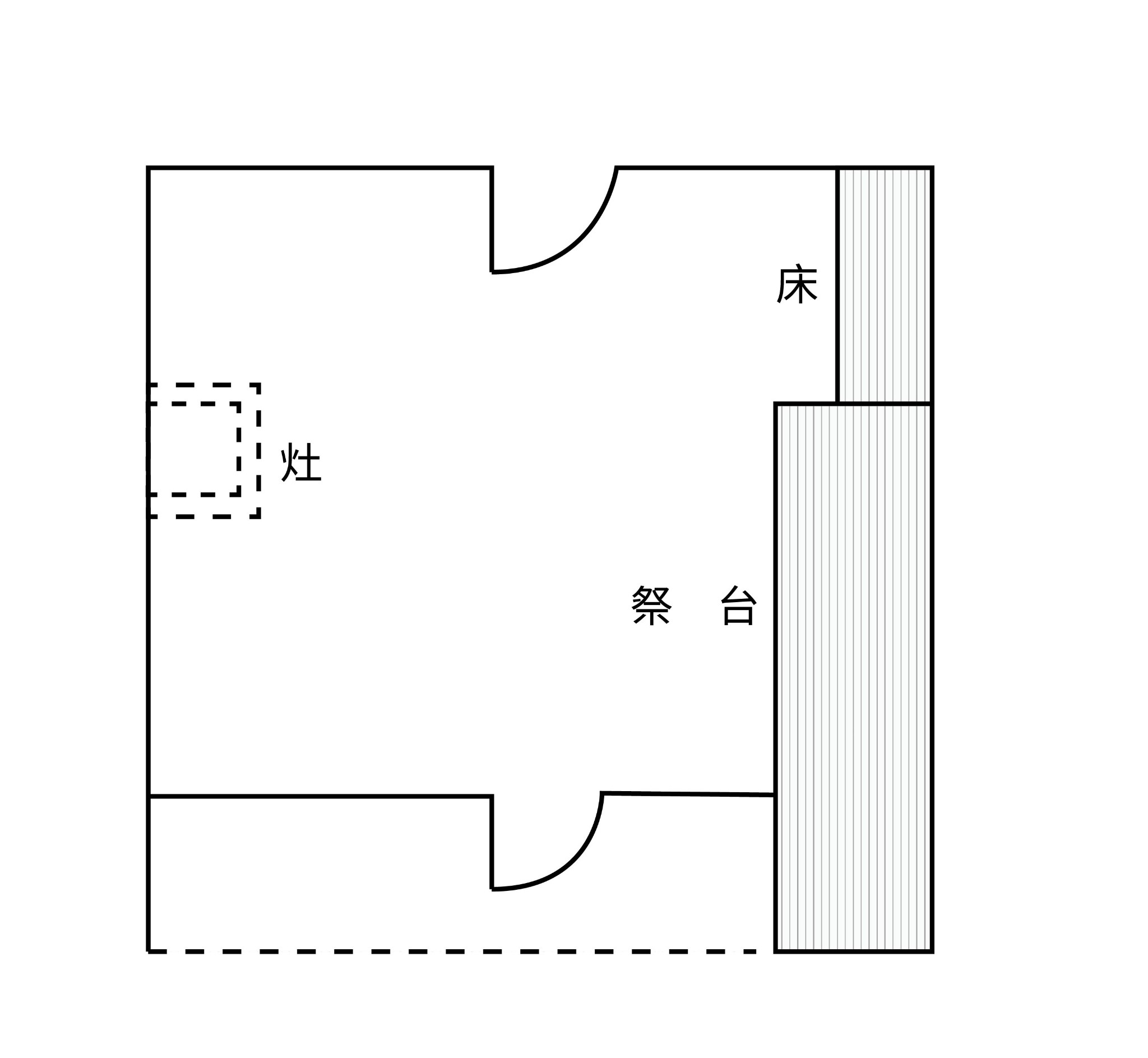
以卑南文化公園復建之巫師性祖靈屋為例,為一竹木構造,雙坡茅葺頂。室內為單室形,設有灶,位於室內往外看的右側,上方有置物架、可掛獵物頭骨。漏斗形竹器為巫師重要法器,掛於中柱。床為高床式,與祭台位於室內往外看的左側。
【圖1】知本三大氏族祖靈屋。(許勝發提供,2024年)
【圖2】卑南遺址公園復健之卑南族巫師祖靈屋正立面景象。(許勝發提供,2024年)
【圖3】卑南遺址公園復健之卑南族巫師祖靈屋側立面景象。(許勝發提供,2024年)

【圖4】祖靈屋平面圖。(編輯部依據原民會臺灣原住民族傳統建築,「卑南族宗族靈屋」繪製)
參考文獻: